Il Teatro Nuovo Giovanni da Udine, da più di 25 anni punto nevralgico della cultura udinese e regionale, sarà interessato da importanti lavori di ammodernamento del valore di oltre un milione di euro, inseriti nel progetto di fattibilità tecnica approvato nell’ultima seduta da parte della Giunta Comunale e che a fine mese passerà al vaglio del Consiglio.
Gli interventi previsti sull’immobile di proprietà del Comune di Udine sono in tutto quattro: la ristrutturazione dell’area bar e del foyer, i lavori per la creazione di un Ridotto, la riorganizzazione dello spazio degli uffici amministrativi e l’installazione di un impianto fotovoltaico sul tetto dell’edificio.
“Le opere che abbiamo approvato non solo mirano a portare il nostro teatro al livello dei migliori standard europei per la sostenibilità energetica degli edifici pubblici, ma puntano soprattutto a trasformarlo in un luogo di cultura da vivere appieno, con più servizi e un’offerta più ampia”, commenta l’Assessore alla Cultura Federico Pirone. “Con questi interventi, un luogo come il Giovanni da Udine sarà in grado di proporsi con una programmazione più ampia e diversificata, potrà dare maggior spazio all’associazionismo del territorio, avrà la possibilità di sostenere e far nascere progetti nuovi. Lavoriamo in stretta sinergia con la Fondazione – conclude l’Assessore – per rendere la nostra città sempre più aperta, inclusiva e innovativa”.
“Si tratta di lavori di notevole importanza, finanziati attraverso un accordo quadro tra il Comune e la Fondazione che gestisce il teatro, che effettuerà i lavori a fronte di uno scomputo dal canone di locazione fino al 2046, nuovo termine della concessione dell’immobile. Il risultato del progetto è duplice: i servizi e l’offerta culturale della città si amplieranno notevolmente, ma al contempo valorizzeremo il nostro patrimonio con un teatro ammodernato e con maggiori spazi utilizzabili”, spiega l’Assessore al Patrimonio Gea Arcella.
Il nuovo Ridotto darà spazio a più spettacoli rispetto al passato, la nuova area ristoro amplierà gli orari di servizio anche al di fuori degli orari degli spettacoli, e la nuova area uffici permetterà ai dipendenti di lavorare in ambienti più moderni e funzionali. L’impianto a energia solare abbatterà i costi legati all’approvvigionamento energetico.
Sala Ridotto
Il nuovo Ridotto del Giovanni da Udine è una sala interrata, con capienza di circa 200 posti, utilizzata finora saltuariamente come sala prove. I lavori comprenderanno tutte quelle azioni necessarie ad ottenere l’agibilità degli spazi per il pubblico spettacolo. Gli interventi riguarderanno in sintesi l’adeguamento strutturale delle gradinate esistenti, i percorsi di accesso, le uscite di sicurezza, gli impianti, nonché la creazione di un foyer e dei locali accessori, un guardaroba, un piccolo bar e i servizi igienici. Il quadro economico supera di poco i 450 mila euro. Una volta terminati i lavori e resa operativa, la sala sarà a disposizione del comune per almeno 20 giornate ad uso gratuito.
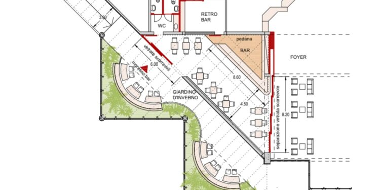
Nuova area bar
Il bar, ad oggi, è parte integrante del foyer, usa le sue porte di ingresso e uscita, i suoi servizi, ed il suo uso è limitato alle occasioni di apertura del Teatro. Grazie ai lavori previsti sarà installata una parete mobile in vetro che separerà il bar dal foyer. Il sottoportico esterno adiacente al bar sarà anch’esso totalmente riqualificato con tavoli, sedute e ornamenti complementari. Con questo intervento del valore di 180 mila euro, il passaggio esterno sarà finalmente sfruttato e diventerà a tutti gli effetti un’estensione delle aree interne al Teatro a disposizione dei clienti del bar.
Impianto Fotovoltaico
L’intervento più importante, almeno a livello economico con un investimento che sfiora da solo il mezzo milione di euro, sarà l’installazione di un impianto fotovoltaico che dovrebbe garantire una produzione annua di circa 160.000 kWh/anno. I pannelli saranno collocati sugli spazi liberi sul tetto dell’edificio. Dal momento che il consumo energetico è maggiore nelle ore serali, all’impianto fotovoltaico si affiancherà un sistema di accumulo d’energia, per garantire una maggiore disponibilità quando la domanda è più alta. L’installazione dell’impianto a energia solare permetterà un risparmio di circa il 30% sui costi energetici della struttura. Prima dell’installazione dei pannelli, la superficie del tetto del Giovanni da Udine sarà riqualificata e impermeabilizzata.
Uffici
Infine, l’area uffici. Attualmente l’area amministrativa si trova al primo piano in una zona lontana dagli altri uffici. L’intervento permetterà una migliore razionalizzazione degli spazi rendendo quindi l’ambiente di lavoro più organizzato e funzionale per i dipendenti.














